
Rendering of proposed townhouse development on Humbert Street in Princeton (click to expand)
Princeton Planning Board will consider an application on Thursday night for a three-home townhouse development on Humbert Street (map) in central Princeton. The plan would bring three compact homes to a site just off Wiggins Street that is within 2 minutes walk of downtown, but municipal staff have raised concerns about the density of the proposal.
The applicant, ‘Simplify Living LLC’ appears to have acquired the 0.25 acre site at 23-25 Humbert Street in 2017 for $1,008,000. The existing building on this lot, which was constructed in 1920 (see image below) is now in a state of considerable disrepair and would be demolished.

Former structure at 23-25 Humbert St as seen in September 2019. Via Google Streetview (click to expand).
The applicant proposes to replace the previous home with three connected units, which would be accessed by ‘Humbert Place’, a private driveway intersecting with Humbert Street (see plan below). Each of the townhouses would have two floors + basement and attic, with three bedrooms and 2.5 bathrooms. From the front, the new development would look like just one house, but it would extend back with two additional dwellings. One off-street parking space would be available for each unit, with additional parking available on Humbert Place. A three-unit development like this is permitted in the R-4 zone, but several variances would be required, including for impervious coverage, side yard setbacks, and amount of outdoor space.

Proposed alignment of three townhouse units on ‘Humbert Place’ in central Princeton. (click to expand).
Municipal staff observed that “the proposed project is very dense and it is located in an already heavily developed section of Princeton”. Although the project is hardly the Empire State Building, it does represent an increase in the number of residences on the site. Having more homes in a town may reduce pressure to develop green-field sites, and enable people who work in Princeton to walk or bike to work. The applicant proposes to upgrade the sidewalk adjoining the property, and provide an external bike rack. Three electric vehicle charging stations would also be provided. Stormwater arising from the increased impervious surface would be collected in dry wells on the site. The town recently updated its stormwater regulations for new developments, and the proposal exceeds all the regulations.

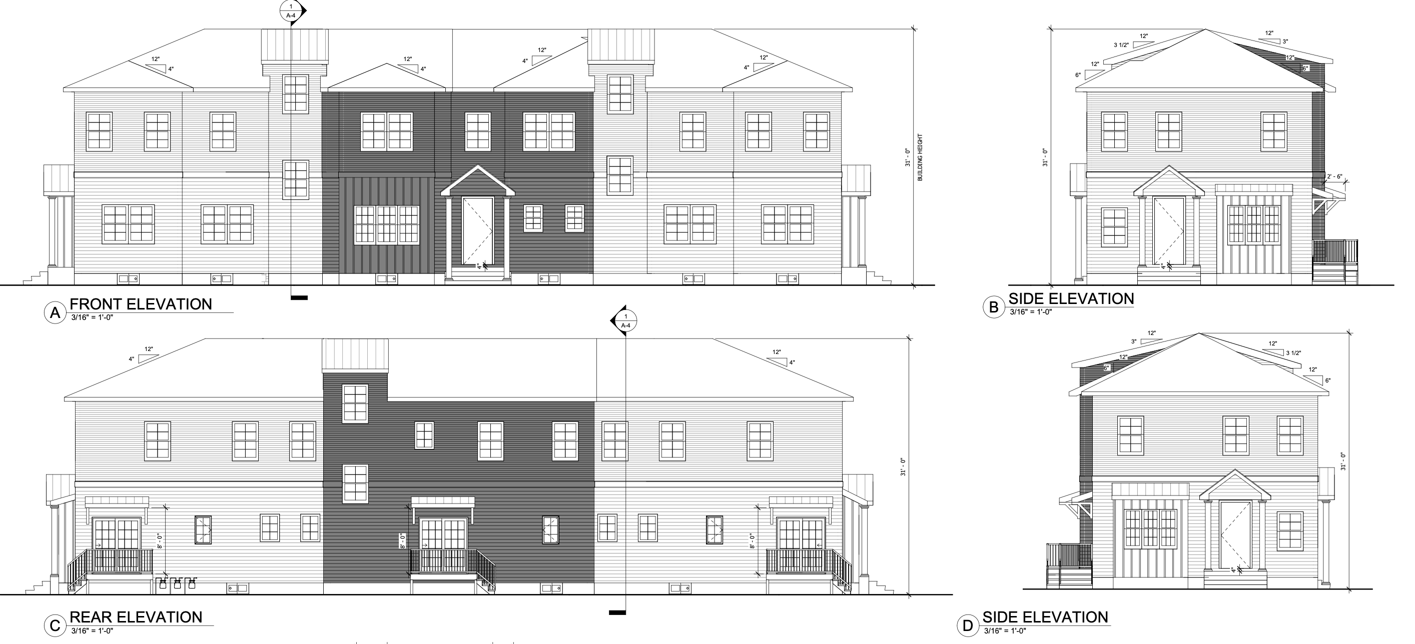
Renderings of proposed townhouses on Humbert St in Princeton. (click to expand)
The application was previously considered by the town’s Site Plan Review Advisory Board, who seemed mostly supportive of the variances, but urged that consideration be given to the appearance of the building from Humbert Street, in particular through use of traditional materials that would fit in well with the neighborhood.
Floor plans and renderings of the project (via princtonnj.gov)
Detailed site plan (via princetonnj.gov)