The proposed redevelopment of the 255 Nassau Crossfit gym (formerly Wild Oats market) is in doubt as NJDOT regulations, University inflexibility, and municipal red tape combine to stymie the plan. Skeptical officials look set to can the plan, but it is far from certain that this will result in a good outcome for Princeton.
Years in planning, the 255 Nassau Street re-development would add much-needed housing (including 3 affordable units), banking facilities and office space. The building is lower than the allowed height limit, would bring less traffic than the former supermarket use (according to traffic studies completed under assumptions that likely overstate the future traffic volume) and has loads of parking. But it also has a big deficiency: Princeton University owns the driveway to the site, and won’t grant an access easement. The developers claim that they cannot get financing for the project in the absence of guaranteed permanent access to the site, and therefore want to open a new curb-cut onto busy Nassau Street. This is hardly going to make for an enhanced pedestrian experience, and potentially outweighs the benefits brought from a new public plaza at the site.

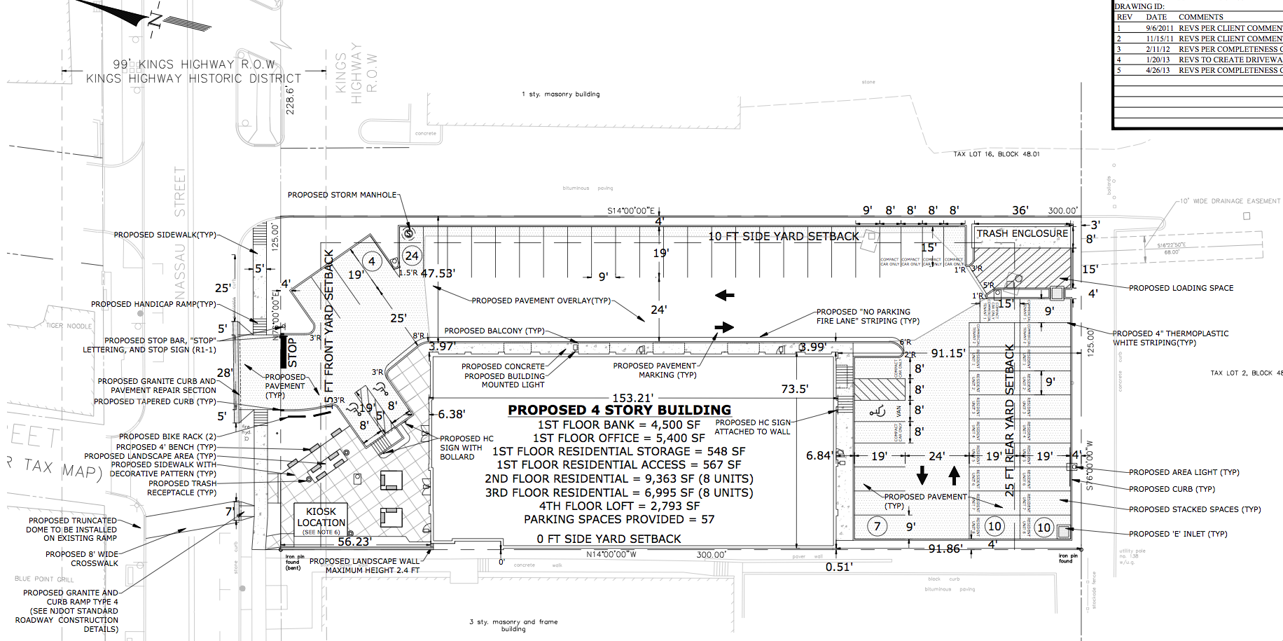
Site plan of the proposed 255 Nassau St development, showing proposed parking at front, sides and rear of the building. All images courtesy of ROI Renovations (Click to expand.)
The developer (representing the owners- the Carnevale family- longtime Princeton residents and former proprietors of ‘The Annex’ restaurant) has attended over 14 public meetings about the redevelopment. They have also engaged in a 2-year back-and-forth with the University to try to secure a driveway easement. The project has been scrutinized by the Princeton Environmental Commission, which demanded composting and use of energy star appliances, and the Site Planning Review and Advisory Board which was broadly supportive, but condemned the use of LED lighting to illuminate the cornices of the building. The plan is now stalled before a skeptical Zoning Board of Adjustment who, despite talking about the plan for 3 and a half hours at their meeting on September 18, have scheduled another meeting on October 23 to get more details.
Meanwhile, various neighbors and local personages, all of whom have their own opinions about what the site should and shouldn’t be used for, are waiting in the wings, apparently ready to object to the plan. Officials who helped with the public consultation for the project, and who pushed through controversial amendments to the site zoning, feel let down at the final plan that the developer has brought forward. As such, the Zoning Board would likely be congratulated for rejecting the project, which it could do very easily by refusing the developer’s requested zoning variances.
The assumption is that the owners would then go away and come back with a new, improved plan, without the new curb-cut onto Nassau Street. That is a very optimistic view. First of all, it is just as likely that the developer would sue the town alleging unfair treatment, especially after the proposal received a favorable report from SPRAB. Second, a rejection of the site variances would not stop the developer getting the hated curb-cut, because Nassau Street is under the control of New Jersey Department of Transportation. 255 Nassau is currently zoned for commercial use, which NJDOT predicts would cause more traffic than they would permit for a new curb-cut. But they could easily grant the curb-cut if the developer promised to leave the commercial space empty. In that case, we’d get the curb-cut, but the ground floor of the site would sit empty for years to come.
Princeton zoning attempts to regulate a perfect town into existence, but instead tends to produce perverse outcomes. The best, most walkable parts of town (central Nassau Street and Palmer Square) were built before zoning even existed. At 255 Nassau, the developer is doing the town a huge favor by trying to add walkable housing. Let’s be clear: Princeton desperately needs more homes in neighborhoods like this, where people can walk to work and amenities. We haven’t added enough housing for decades, with the result that 22,000 people drive into town every day to their jobs. This is unnecessarily adding to traffic and carbon emissions. Now, with the very future of the planet at stake, and a golden opportunity to increase bike/walk transportation mode-share, the question we should be asking is “what can we do to help make this project happen?”
A big problem is that we tend to approve developments on a lot-by-lot basis instead of thinking in terms of whole neighborhoods. The developer of 255 Nassau might wonder why there is such a fuss about them getting a new curb-cut, when almost every business along that block has their own curb-cut, and some, such as Jay’s Cycles, have two!
If Princeton planning was working properly, it would identify ways to make it easier for developers to add useful development, such as the mixed-use, moderate-density spaces that enhance the vibrancy of Princeton’s downtown and provide much-needed homes for Princeton’s workforce. For example, along this particular block of Nassau Street, the town could work with existing property owners to incentivize consolidating and sharing parking at the rear of the buildings. This would allow more efficient use of existing parking, and allow alternative access from Olden Street, eliminating curb-cuts on Nassau Street, and reducing pedestrian-vehicle conflicts:

Allowing access to 255 Nassau (and adjoining properties) through shared rear parking would enable more efficient site use and free up the streetspace on Nassau Street for more pedestrian-friendly uses. (Click to expand.)
In Princeton, anybody who tries to redevelop infill sites- a green idea that is endorsed by the EPA, National Resources Defense Council and the Sierra Club- can expect to be put through the mill. That is one reason why Princeton has grown disproportionately slowly in recent years. Faced with almost-insurmountable obstacles, developers instead go to green field sites and add huge swathes of identikit housing on farmland. This housing can usually be built as-of-right and financing is easy. However, it is almost invariably totally car-dependent, causing traffic gridlock, sprawl, excess carbon emissions, and loss of trade for downtown businesses. If we’re not prepared to proactively make it easier for developers to add the walkable housing that the planet needs and the market demands, then we are part of the problem, not the solution, and we ought to get out of the way.
The development will be considered again by the Zoning Board at their meeting on October 23. We’ll be there to let them know what we think, and if you want to join us, definitely get involved. Redevelopment at 255 Nassau Street has divided opinions even among Princeton urbanists, so we’re particularly interested in your comments. You can also leave your thoughts using the comment box below!


You say “Faced with almost-insurmountable obstacles, developers instead
go to green field sites and add huge swathes of identikit housing on farmland.”
So let’s follow the hyperlink and gain a bit of understanding/truth about what’s
really happening in one of these “Princeton zipcode” places, say Princeton
Manor (off 27 in Kendall Park) where my former boss used to own a house.
This is one of those “55+ age-restricted active-adult empty-nester” housing
developments, or communities if you will, featuring reduced taxes and (often)
huge houses where the prestige attached to the word “Princeton” is a selling
point. However the suggestion that its developers “faced obstacles in our town”
is specious, since these places are always out in tracts of land between towns.
Regarding the “Crossfit Gym” property (formerly Olive May, Wild Oats, Davidsons
Groceries), it’s sorta interesting to ask “what if” or “what might have been” from the
point of view of non-motorized circulation in the vicinity. Refer to this map/sketch
http://tinyurl.com/spruce-map and photo (http://tinyurl.com/olive-may) taken from
the Engineering Quad parking area, showing the disputed “back entrance” gate.
Orange line – in the space between the former West Coast Video and Fowler’s Gulf,
there could be a laneway or path perfectly aligned with (facing) Maple’s intersection.
Pink line – it used to be that you could walk/bike from the end of Patton in a
straight shot, past the parking garage, emerging on Olden, without going
around beside Von Neumann Hall. I have a feeling that the Andlinger
Center, once completed next year, will still allow pedestrians to use this
convenient shortcut.
Yellow lines – it’s unfortunate that Quarry Park (at the end of Spruce) didn’t
get better connectivity when Barsky Court got built. For example a commuter
wanting to avoid the stress of Nassau could potentially escape via riding their
bike (or walking) downhill, to reach the sanctuary of Spruce. Meanwhile off
of Harrison, next to the fire station and making use of the edge of those
various parking lots behind Whole Earth and the bank, maybe there could
be a laneway over to Scott Lane (blue line), again as a shunt from Nassau.
@PBAC
Many people work in downtown Princeton and understandably would prefer to live there. Developers want to build homes to satisfy that demand. If developers can’t profitably add homes near downtown Princeton (because of restrictive zoning and planning), they will build on the first green field they can find. That is why, as new construction in Princeton has stagnated, surrounding farmland has been covered with car-dependent sprawl housing. Pointing to the sprawl housing, all of which will certainly be occupied, and saying “look-that’s clearly what people wanted!” is erroneous because people chose to live there in the context of a market that has been severely distorted by past zoning and planning decisions.
People who opposed development in town will see development on the edge of town and try to stop that too, in part by dedicating tax dollars to land preservation, which prevents development and also affords pleasant green spaces for existing residents. It doesn’t take away the demand, however, it just pushes the development out to a slightly further-away green field, increasing total vehicle-miles traveled, and worsening congestion. We can’t beat developers, we can only beat ourselves.
This is not mere theory, but has been empirically verified by decades of practice. This cycle can only be arrested by:
1. Adding workforce housing near workplaces which can be accessed by walking or biking.
2. Adding density to make transit more efficient, as recommended by the Route 1 Growth Strategy.
You hit the nail on the head. The new generation of planners are wondering why the big bad developers are only sprawling out into green fields, and are conspiring new regulations to prevent such development. In reality, though, they need only look to the planners before them for construing a system that is at its core anti-urban, and unfortunately permeates every development regulation we have in place. Reforming regulation to allow and celebrate redevelopment in the core needs to be the first step.
Pingback: Is That A Good Deal? ‘Two For Two Thousand’ | walkableprinceton
Pingback: Princeton Zoning Board Nixes Mixed-Use 255 Nassau Street Plan | walkableprinceton
Pingback: Walkability Answers From Council Candidate Fausta Rodriguez-Wertz | walkableprinceton
Pingback: First Look: 255 Nassau Street ‘Plan B’. | walkableprinceton
Pingback: More Details About 255 Nassau Street ‘Plan B’ Mixed-Use Development | walkableprinceton