
Part of the old Princeton Nurseries complex in Kingston NJ (Image via CKCurtis via FPNL, click to expand)
In Kingston NJ, just across Carnegie Lake from Princeton, the ‘Mapleton Preserve‘ offers open space and a chance to connect to nature. The site was formerly part of the largest commercial nursery in the USA, ‘Princeton Nurseries‘. After its closure in 1995, a significant part of the Princeton Nurseries land was preserved. The 53 acre core of preserved area, including the most significant nursery buildings, became the Mapleton Preserve. The New Jersey Department of Environmental Protection and South Brunswick Township established the ‘Mapleton Preserve Commission’, to ensure that the land could be managed for recreation and conservation purposes, for passive recreation, historic preservation, and nature preserve purposes, as well as historic agricultural and horticultural activities. In order to meet the goals set for the Preserve, the Commission developed a creative plan for development to preserve the historic landscape including its buildings. This week, however, the redevelopment proposal was withdrawn after substantial local opposition, and the historic warehouse buildings now face demolition.
Princeton Nurseries was established by William Flemer in 1913. After choosing an area to the south of the newly-completed Lake Carnegie, Flemer purchased four farms and grew the operation into an agricultural powerhouse. Several new cultivars were begun, including the disease-resistant ‘Princeton’ Elm, the ‘October Glory’ Maple, and the ‘Snow Queen’ Hydrangea. Princeton Nurseries became a key part of the local economy, until the company closed its Kingston site in 1995. After a concerted effort by local groups, South Brunswick Township, and NJ DEP, 186 acres were preserved and are now co-owned by the State and Township. The site was added to the National Register of Historic Places last year. The disused buildings, which form a key part of the historic site, require significant investment to be properly restored. As neither the State nor South Brunswick Township was able to provide this investment, the Mapleton Preserve Commission drew up a ‘Management Plan’ to try to preserve the historic character of the former nurseries.

These greenhouses, part of the Princeton Nurseries Historic District, need substantial investment to be restored. (click to expand, image via FPNL)
Drawing on the experience of historic preservation at other sites in New Jersey, in particular Sandy Hook National Park, the Mapleton Commission developed a process leading to a request for proposal (RFP) to redevelop the historic Princeton Nurseries warehouses. The RFP was open to for-profit or non-profit companies, and other agricultural-based related uses, but only one applicant submitted a viable proposal. Old York Cellars, a New Jersey winery, offered to repurpose the historic buildings as a winery. The Nursery Lands would once again have an agricultural purpose – for growing grapes – and the remaining historic buildings would be restored for tastings and interpretative guides to the open space. Old York Cellars also promised to maintain and upgrade public paths throughout the former Nursery Lands, ensuring that the landscape would be preserved and improved for long term public access.

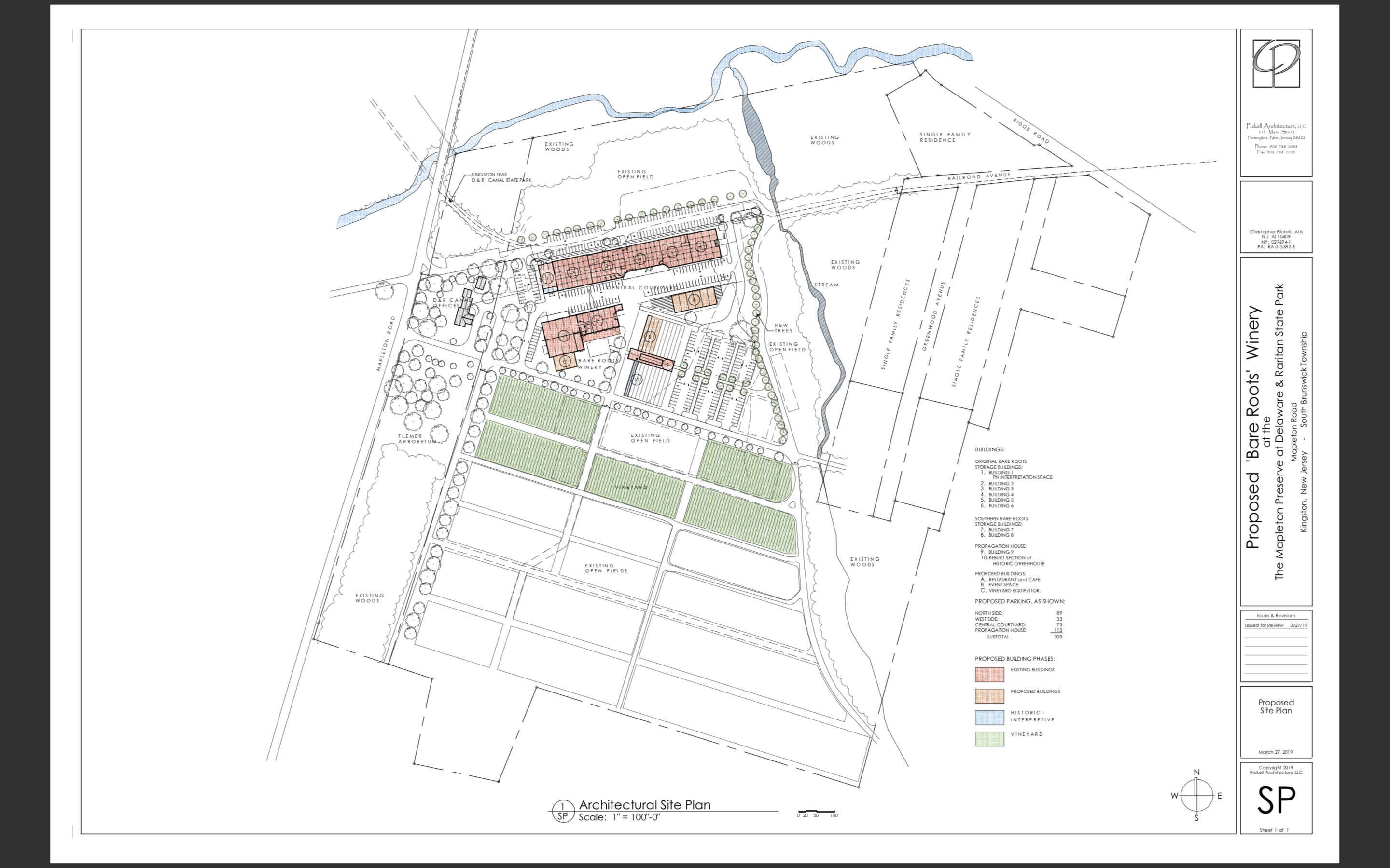
Proposed site plan for redevelopment of Princeton Nursery buildings in Kingston NJ (click to expand)
According to the Old York Cellars Proposal, the remaining buildings, which are currently fenced off, would be re-opened to the public and restored. The Mapleton Commission was very interested in the proposal, but some found it too ambitious. Old York Cellars offered to downsize the plan. Based on the changes, the Commission recommended the plan to NJ DEP and South Brunswick Township, as a suitable way to preserve the historic buildings and landscape. Negotiators from NJDEP and the Township met, but those from the Township still found the plan too big, so Old York Cellars again offered to reduce the size and scope of the proposal. The newly-revised plan was passed to NJ DEP and South Brunswick Council for approval.
During this time, neighbors learned about the proposed redevelopment, and began a campaign to block it. Complaining about traffic and commercialization of open space, they launched a petition at change.org that has reached almost 2,000 signatures. The ‘Conserve the Preserve‘ coalition has claimed that the preserved open space was always intended for passive use, however uses related to agriculture are permitted and even encouraged by the New Jersey Green Acres program. Opponents have also argued that redevelopment risks releasing hazardous materials into the environment, but the New Jersey Department of Environmental Protection required site testing and remediation of all contamination before taking ownership of the property. Nonetheless, the scale of opposition persuaded South Brunswick Council to reject the most recent redevelopment proposal and as a result, Old York Cellars has withdrawn its redevelopment proposal.
Robert von Zumbusch, a local champion of historic and open space preservation, and Chair of the Mapleton Preserve Commission, expressed regret about the denial of the ‘thoughtful proposal’ which was intended to preserve the historic buildings and cultural landscape. Von Zumbusch said that the developer “was treated very unfairly” by misleading information circulated by opponents of the project. He said that that the historic warehouses are now certain to be demolished, at taxpayer expense, because no alternative plan for their preservation is available. The character of the site as an important horticultural enterprise of national significance risks being mostly lost, as invasive species infiltrate the landscape. Neighbors may not care, as long as nothing is built on the site, but the Princeton area looks set to lose a a National Register historic landscape that contributed to the character of the local area for many decades.