
The Chairman voted “No”, but other members of the Princeton Zoning Board of Adjustment saw enough to like about a revised ‘Lincoln Court’ apartment plan to approve the project. The vote came at the ZBA’s regular meeting on January 25. The developer is RB Homes, the firm founded by Roman Barsky. Barsky is perhaps most known for constructing new-build single-family homes around Princeton, but RB Homes is increasingly active in building multi-family developments, often including below-market-rate affordable units. The ‘Lincoln Court’ project will provide two affordable apartments, and eight that will be rented at regular market rates. A previous version of this project was considered unacceptable by the Zoning Board at their meeting in November, but the applicant very swiftly revised the plan to be ready for the first Zoning Board meeting of 2023.
As previously reported at ‘Walkable Princeton’ (see: “RB Homes Propose 10-Unit Inclusionary Apartment Building On ‘Lincoln Court’ in Downtown Princeton“), the project site includes a house on Vandeventer Avenue, and the lots behind it, which include a heavily-dilapidated former duplex (map). The apartments will stand next to the back of the old Triumph Brewpub, and across the street from the back of the ‘Nelson Glass House‘ building, which fronts onto Spring Street. As things stand, this is a run-down site, but it is incredibly walkable to downtown Princeton.

RB Homes is proposing to restore the home on Vandeventer Avenue, an idea that is popular with neighbors, the Historic Preservation Commission, and members of the Zoning Board of Adjustment. Other parts of the plan were not so popular with the Board. Part of the backyard of the house on Vandeventer Ave will be repurposed to help meet the town’s requirement for off-street parking for the apartments. Some Board members worried that the apartment building would be inaccessible to fire equipment. Others, including Board Chair, Steven Cohen, felt that the original design for the apartment building was just too big (see: “Princeton Zoning Board Gives Thumbs-Down to Proposed ‘Lincoln Court’ Apartment Plan“).
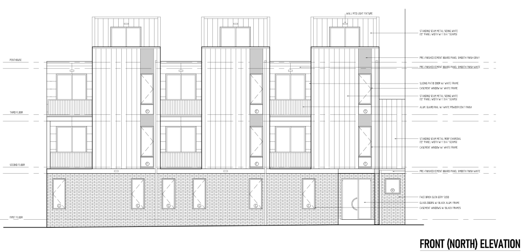
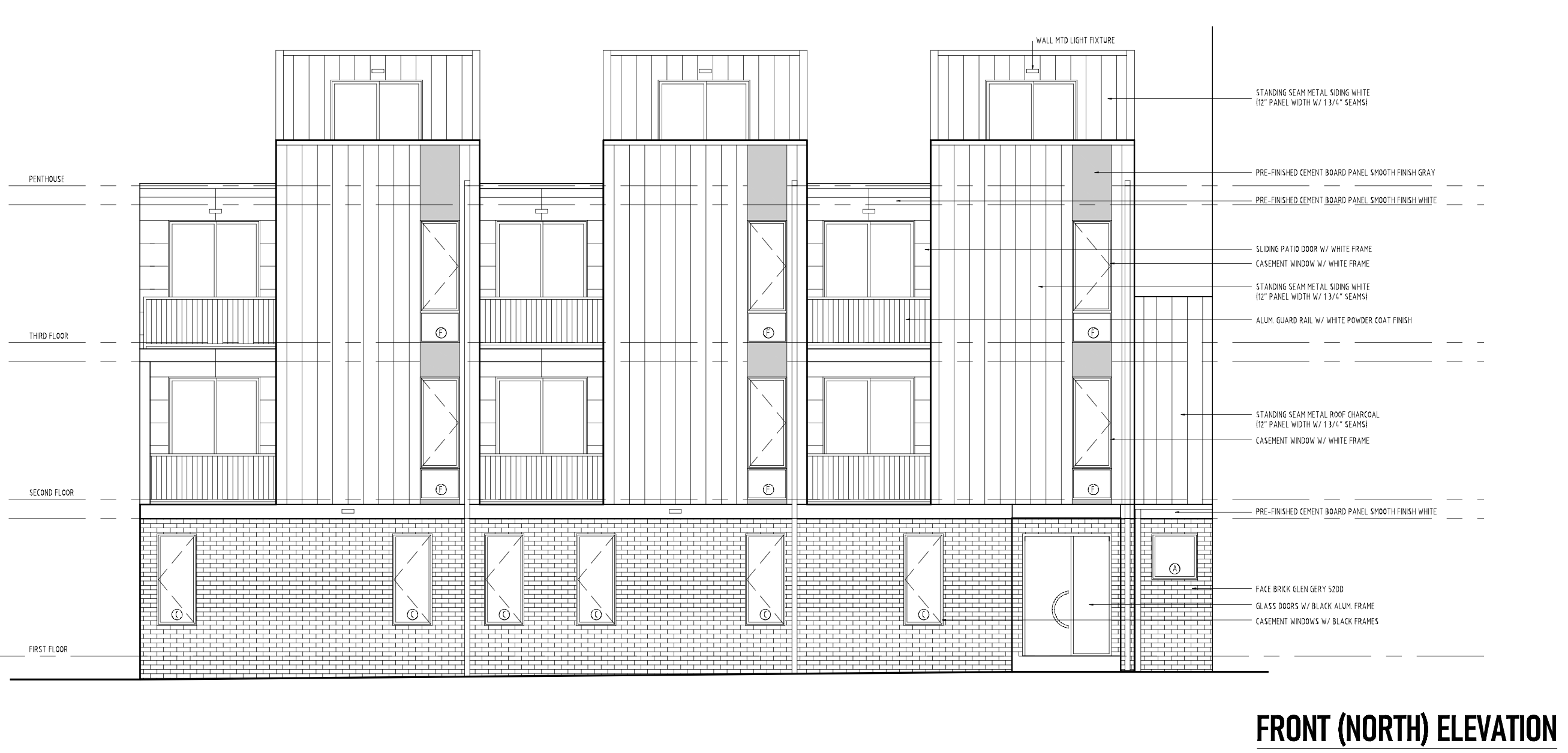
At the Jan 25 meeting, Joseph Novack, the town’s Fire Official, testified that there would be no problem with getting fire equipment to the site. The revised design of the apartment building also responded to an additional concern about a lack of external windows in some of the bedrooms. The question of the size of the apartment building was still potentially a problem, however. Although the redesigned building is smaller than in the original plan, it is really a pretty marginal downsizing. Setbacks of a few feet were added around the perimeter of the building, but it is still the same number of units and rooms, in fact a half-bathroom was even added to one of the affordable units. The rendering of the new plan seems almost indistinguishable from the old plan.
The applicant’s attorney argued that although the building would be larger than is allowable under code, and therefore required a variance from the board, it would nonetheless be consistent with the surrounding area. Most of the buildings downtown were built before the current zoning was enacted, so they are larger than zoning permits and could not be built the same way today. The apartment plan also offers two affordable apartments. Although RB Homes could build some townhouses on this site with zero affordable units (and in fact presented a plan to show exactly how that could be done), they instead proposed the mixed-income apartment plan. This community benefit arguably justifies the increased density.
There was not much comment from members of the public, and, in the end, six members of the board agreed that that the revised plan warranted approval. Despite explaining several times how much he liked the plan, Steven Cohen ultimately voted ‘No’, but he was the only dissenter. The apartment plan can now move forward, and will add to Princeton’s collection of downtown multi-family residences.
- Updated architectural plan for Lincoln Court apartments (via princetonnj.gov)
- Video of the meeting. The Lincoln Court application is discussed starting at 08:09: