Community planning group ‘Princeton Future’ held a meeting at Princeton Public Library last Saturday, to discuss planned new affordable housing on Franklin Avenue. According to the town’s affordable housing settlement, agreed last year, and subsequently approved by Mercer County Superior Court, 80 units of new housing are to be built in a 100%-affordable development. The site is on the other side of Franklin Ave from the Avalon Princeton development, between Maple Terrace and Jefferson Road (map). At present, there are some older affordable homes on the site, and a large parking lot that was used by the old Princeton Hospital. Around 60 attendees heard more details about the proposal, offered public comment, and heard concept plans by local architects for what the housing might look like.
Princeton Community Housing and the Princeton Housing Authority would help drive the redevelopment. The Executive Director of Princeton Community Housing, Ed Truscelli, and Alvin McGowen of the PHA spoke at the beginning of the meeting. A housing consultant, Stuart Portney, subsequently explained that the project would be financed using “9% Low-Income Housing Tax Credits‘. This is a federal program to provide dollars for affordable housing projects, but a major challenge is that it is extremely competitive. Any project hoping to gain funding has to be a perfect fit for the program, which means, for example, that is must have some ‘green’ sustainability features, but must also not cost too much. That could be a problem for Princeton, because many atendees voiced a desire for state-of-the-art sustainability features, such as ‘Passive House‘ standards and solar panels. Underground parking is another costly feature that some neighbors would like.

Ideas emerging from community discussion in Princeton Future charette, Feb 29, 2020. (click to expand)
After discussing the project in small groups at different tables, the gathered community members shared their ideas for the site. Local affordable housing developer Christina Foglio pointed out that the financing for the project could be much easier if it was reimagined as a mixed-income development. The project would still need to have at least 80 units of affordable housing – that is set by the town’s legal settlement – but by including some market-rate units, it would not be so dependent on the competitive tax credits, and market rents would help offset the cost of some of the more expensive features that community members would like to see.

Architect Bob Hillier presents a concept plan for housing at the Franklin Ave site. (click to expand)
Local architect Bob Hillier presented a 100-unit concept plan for the site that he had designed in 2017, which included mixed-income housing as Foglio had suggested. This plan was intended to be a 20% inclusionary project, with 20 affordable units and 80 market-rate units. That wouldn’t be enough to meet the town’s current need of 80 affordable units for the site, but Hillier is reportedly working on a new version.

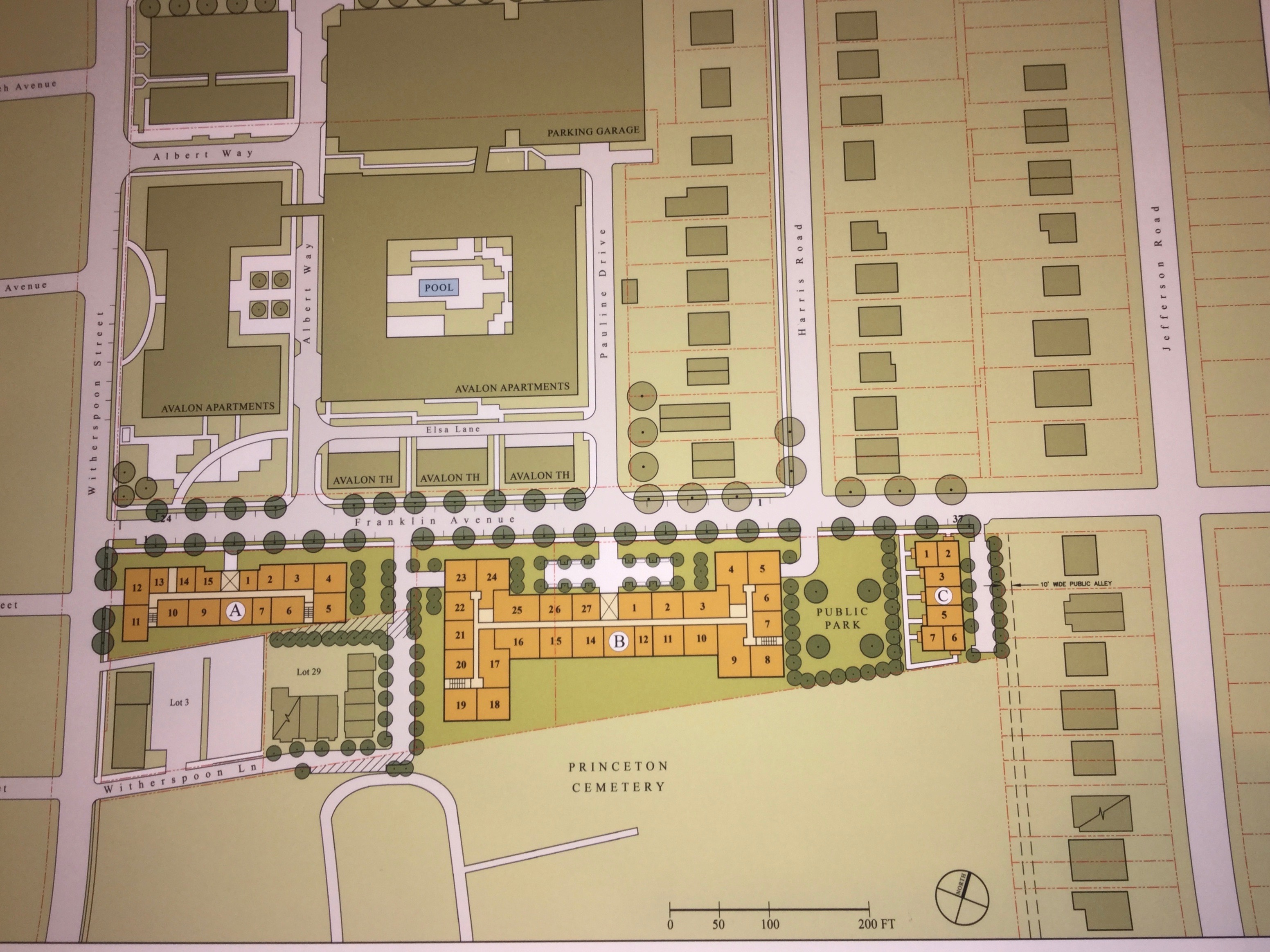
Concept plan by Studio Hillier for mixed-income housing on Franklin Ave in Princeton. (click to expand)
Hillier’s plan included a park around the intersection of Franklin Ave and Harris Road, and parking partially buried in a lower level beneath the proposed housing:
Joel Schwartz, a Princeton-based planner, then presented his own plan for Franklin Ave. He envisioned a 160-unit project, in which 80 of the new homes would be designated affordable units, to meet the town’s court settlement, and the other 80 units would be market-rate units. Schwartz’s plan also includes a new road connection from Witherspoon Lane to the site, so that cars entering and exiting the new development would have another option instead of all using Franklin Ave. An entrance to the north side of Princeton Cemetery is also part of his plan, providing the possibility of using walking paths in the cemetery to connect from Franklin Ave to downtown Princeton.
The Joel Schwartz plan also includes a new park for the neighborhood and ‘podium parking’ similar to the Hillier plan as a way to reduce the visual impact of large surface parking lots, without incurring the cost of digging out an underground parking structure. One issue with the current Hillier and Schwartz concepts is that they both include the corner lot at Franklin Ave and Witherspoon Street. As discussed at the beginning of the Saturday meeting, this lot is going to be retained by Princeton Housing Authority. The Princeton Housing Authority wants affordable housing at this corner lot to have a ‘Princeton preference’, that is, to be reserved for people with a family connection to Princeton. Such local preferences are not allowed in federally-funded projects, so this lot will be split off from the rest of the land for redevelopment purposes.
Although no official plan has been filed with the town at this time, Princeton Council will have to move fast to advance some kind of concept to meet strict deadlines imposed by the court. The Franklin Ave site, as is true for all the sites listed in the town’s affordable housing settlement, is likely to be the subject of official action by Princeton Council in the coming months.


