
The Princeton Planning Department has received an application to redevelop the property at 40-42 North Tulane St in downtown Princeton (map), to create an expanded building with ground-floor commercial space and 14 residential units. The redevelopment would contain a mixture of market-rate and ‘affordable’ residential units, as allowed by the town’s recently-adopted AHO-1 zoning overlay.

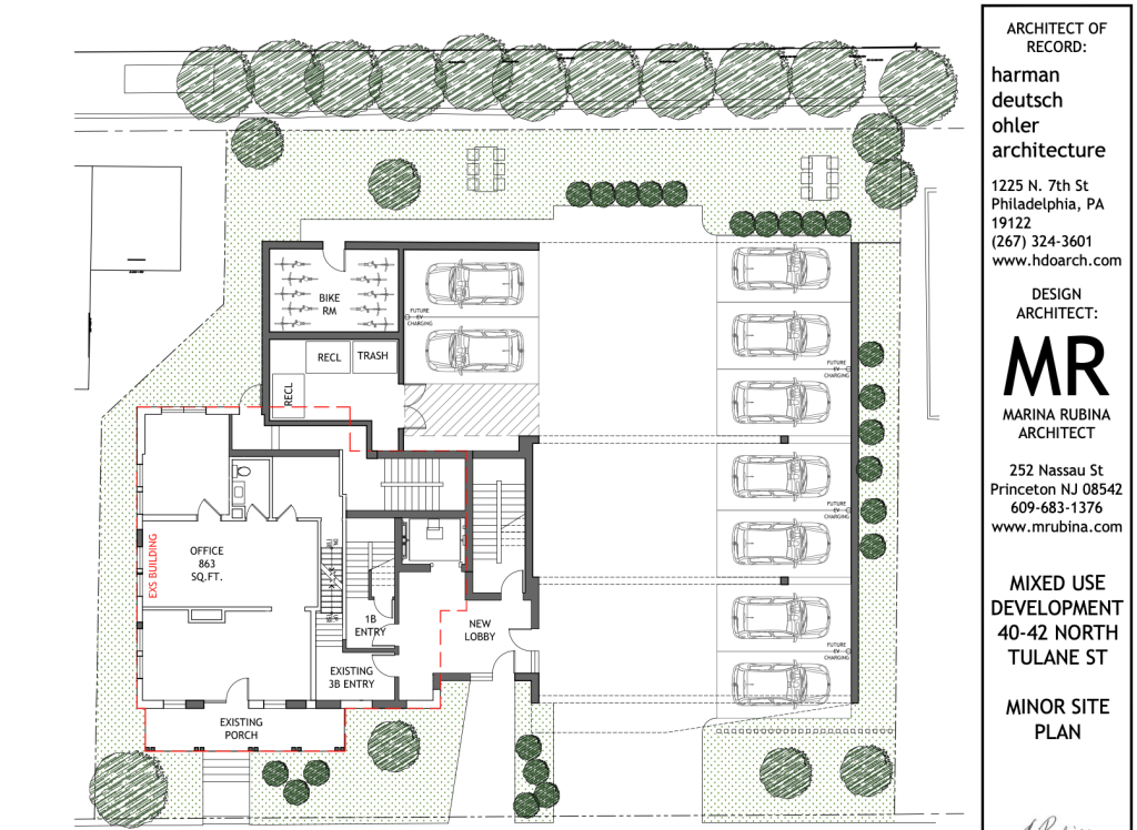
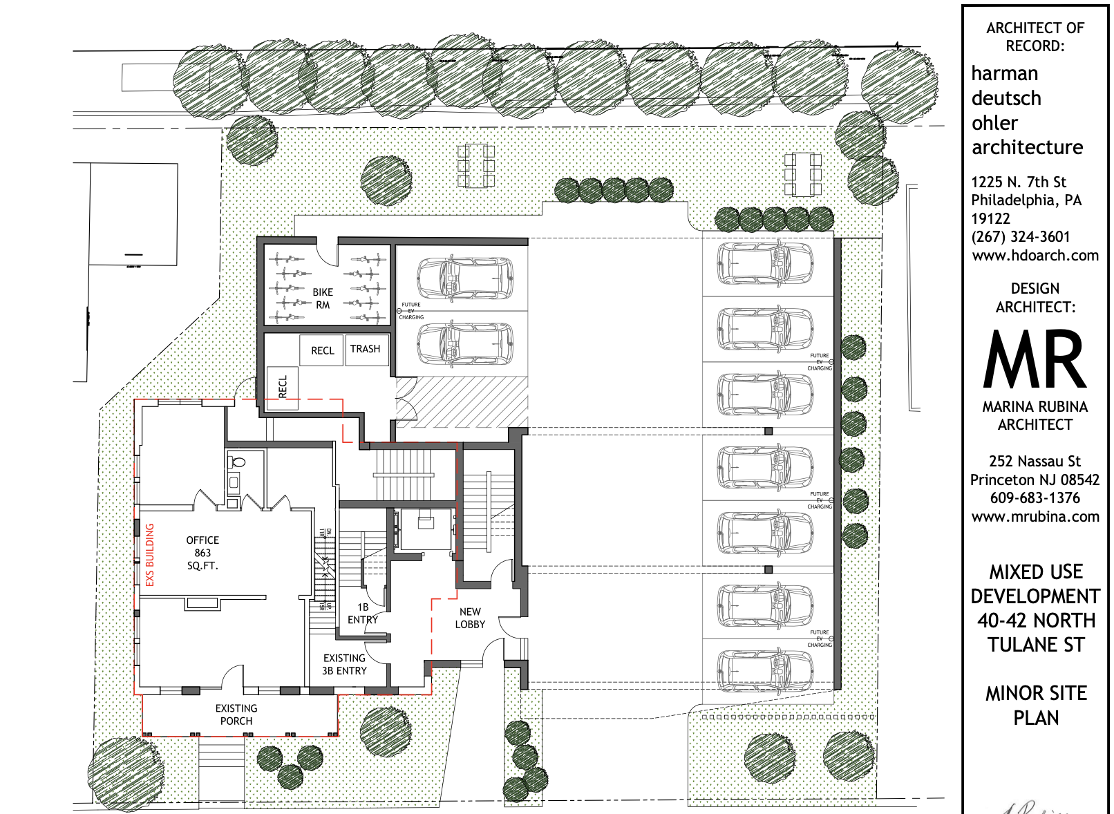
The site owner is the Princeton International Property group, represented on the application by vice-president Arieh Feigenbaum. The architecture on the redevelopment proposal is by Marina Rubina, who is based in Princeton. The existing structure stands behind Kopp’s Cycle Shop at the intersection of North Tulane St and Spring St. This is an incredibly walkable site, situated right next to all the amenities of downtown Princeton, and within one block of transit routes on Witherspoon St and Nassau St. The building that currently stands at this site is used for offices with two residential units above. According to the redevelopment plan, this building would be retained, but substantial new additions and remodeling would create a much larger amount of usable space. No zoning variances are required for the redevelopment proposal. The new structure would rise to a maximum of four stories.

If approved, the redevelopment at 40-42 North Tulane St would create three new affordable homes in the heart of downtown Princeton. These affordable units would be provided under a set-aside rule in Princeton zoning. The remaining 11 units would be made available at market rates. There would also be 2,500 sq ft of ground floor commercial space. As part of the affordable housing overlay at this location, there is increased flexibility about the amount of parking which must be provided. Existing parking garages at the rear of the property (visible in the image above) would be demolished, and nine new parking bays serving the site would be provided on the ground floor of the new structure. A covered ‘bike room’ would also be available on the ground floor.

It is not clear what sustainability features will be included in the proposed development, but renderings show roof-top solar panels. There is no increase in impervious surface from the development proposal, because the site is already 100% impervious. As such, the development is exempt from current Princeton stormwater mitigation requirements.

No date has been set for review of the redevelopment proposal by the Princeton Site Plan Review Advisory Board or Planning Board. If approved, the 40-42 N Tulane St redevelopment would join a growing number of Smart Growth infill projects in the neighborhood. In 2018, the Princeton Planning Board approved the 6-unit ‘Nelson Glass’ project a little further along the block at 45 Spring St (report via walkableprinceton.com). And last week, a proposed 18-unit redevelopment of the former HiTOPS site at 21 Wiggins St was considered for the first time by the Site Plan Review Board (report via walkableprinceton.com). These developments have the potential to provide new walkable and affordable housing close to stores and workplaces in the Princeton central business district.
Links to documents relating to the 40-42 N Tulane St application via princtonnj.gov: