
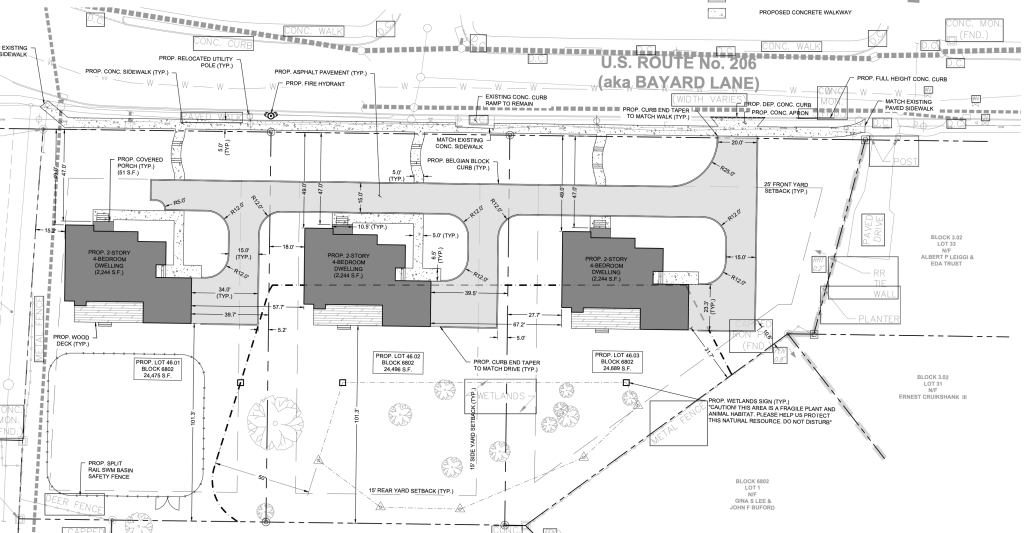
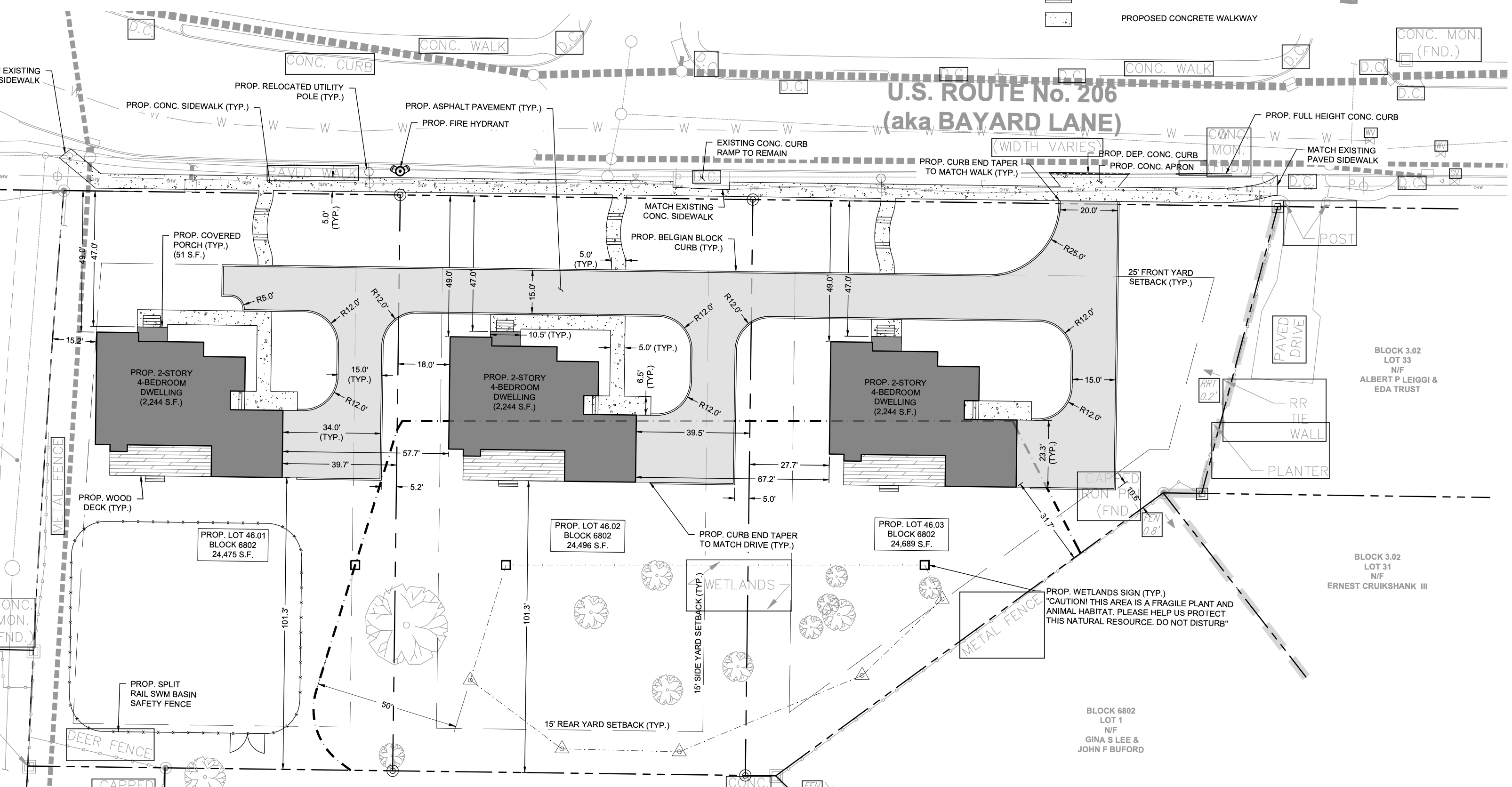
A development application has been submitted to the Princeton Planning Department for three new homes on the western side of Bayard Lane (Route 206), at the intersection with Birch Avenue (see map below). The proposal, from “West Windsor Real Estate, LLC” is for a small subdivision, in which three single-family houses would be accessed by a common driveway.

Currently, the site is made up of three irregular lots, which together make up 1.7 acres. Two of the lots are vacant and partially wooded, and an old, dilapidated farmhouse (apparently of no historical significance) stands on the third. The developer proposes to consolidate and subdivide the land into three lots, which would meet the R-5 zoning requirement for 1/2 acre of land per residence. The farmhouse would be demolished, but the driveway that connects it to Bayard Lane would serve as the entrance for all three new homes in the subdivision. Access to each home would be provided by a shared internal driveway. The new homes would each be 2,224 sq. ft, two-story houses with four bedrooms, a two-car garage and driveway. The existing sidewalk on Bayard Lane would be maintained, offering the possibility of walking to any location on Princeton’s sidewalk network. Palmer Square in downtown Princeton is about a 12-minute walk from the site.

Substantial consideration has been given to stormwater run-off as part of the development application. A new detention basin on the northwest corner of the site would reduce the amount of stormwater running off the site relative to existing conditions. The driveways would be constructed with ‘porous pavement’ to allow penetration of stormwater and reduce run-off. One area at the rear of the site is designated as wetlands, and would be fenced off from the rest of the site with a sign indicating that it is ‘fragile plant and animal habit – do not disturb’.
Long-time readers of ‘ Walkable Princeton’ may recall that this site was the subject of a different, unsuccessful development proposal in 2016 (report: “Bayard Lane Duplex Plan Torpedoed Amid Neighborhood Protest“). At that time, the developer proposed to build three structures which would contain two duplex homes each, for a total of six homes. However, neighbors attending the Zoning Board discussion protested that “the character of the neighborhood would not be enhanced by multi-family units”, with one local resident expressing fear that a proposed new detention basin might increase the risk of mosquito-borne diseases. The developer withdrew the duplex plan in the face of the substantial opposition, and this new plan, for just three single-family homes, is the next step. Perhaps neighbors will be pleased at a proposal that is fully conforming to local zoning, although the larger homes proposed will be less affordable and house fewer families at this quite walkable location.
To view the full planning application via princetonnj.gov: <click here>