
The Princeton Public School District is currently preparing plans for a school bond referendum, which will be voted on by Princeton residents either later this year or in early 2025 (for details, see this ‘Frequently Asked Questions’ from Princeton School District). The proposed school bond would fund significant improvements at three local schools, specifically, Community Park Elementary, Littlebrook Elementary, and the Princeton Middle School. If approved, the School Board would be able to build new classrooms at each school. Concepts have been under development by the School Board’s “Long-Term Planning Committee” since the spring, and preliminary plans have now been been submitted to the Princeton Planning Board for comments.
At Community Park Elementary, the plan (see image at top) shows two additions, and a new parking area. One two-story addition at the northwest part of the school building would be 4,300 sq ft, providing space for six new classrooms. A second, one-story addition, would be built over most of the courtyard space behind the existing gym. This addition would be 9,400 sq ft and would provide a new multi-purpose room/gymnasium and expanded library. The plans also show a new 36-stall parking lot, to be built at the southern part of the site, apparently with access to Witherspoon St via a new curb cut.

The plan for Littlebrook Elementary (above) shows two proposed one-story additions, both of which at the rear of the school. One small addition of 1,850 sq ft would proved a music room and storage. A larger addition of 9,500 sq ft would provide six new classrooms. A new playground with a rubber surface would be added adjacent to the larger addition. As is the case at Community Park School, additional parking is also indicated on the plan, but in this case it is for a ‘potential’ parking area, which would add 13 extra parking stalls. This parking area would extend the existing rear parking lot.

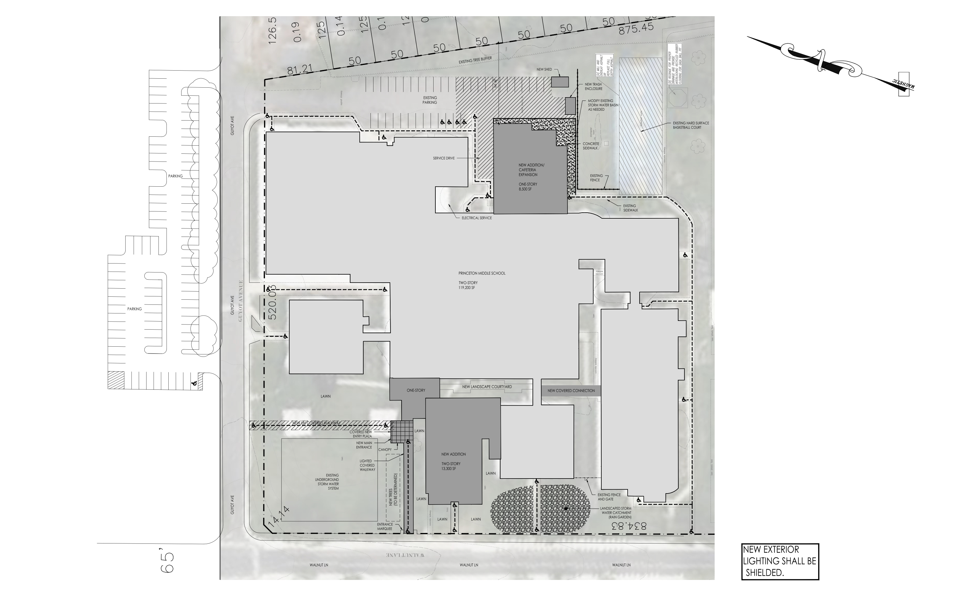
The additions proposed at Princeton Middle School are larger than those at either of Community Park or Littlebrook Elementary Schools. One 8,500 sq ft. addition, at the back of the existing school building, would be one-story and provide a cafeteria expansion, multi-purpose space, and a ‘night lobby’. A second addition, of 13,300 sq ft, would be at the front of the school, facing onto Walnut Lane. It would rise to two stories, and provide nine new classrooms, plus two science classrooms, an ‘administration suite’, and related spaces. This new structure would also provide a new main entrance for the school. Enhanced stormwater mitigation measures and improvements to paths to provide better accessibility for disabled people are also suggested, but there appears to be a net decrease in car parking at this school.
The plans have been passed but the School Districts’s consultants to the Princeton Planning Board for comment. The Planning Board will discuss the plans at their meeting on Thursday, September 5, 2024. There will hopefully be the opportunity for constructive comments. The plans would clearly provide substantial new space to offset the current overcrowding conditions at the elementary schools and Princeton Middle School. Parking has also clearly been a substantial consideration for the consultants,, with new parking lots proposed at two elementary schools. Hopefully the plans can be refined to also maximize access for people walking and using bicycles. Princeton Public Schools often seem set up to prioritize access for people driving cars.
Related materials (via princetonnj.gov):
- Proposed site plan for Community Park Elementary School
- Narrative for improvements at Community Park Elementary School
- Proposed site plan for Littlebrook Elementary School
- Narrative for improvements at Littlebrook Elementary School
- Proposed site plan for Princeton Middle School
- Narrative for improvements at Princeton Middle School