
Rendering of proposed new ‘Health Services Building’ on Princeton University campus.
Princeton University has submitted plans to construct a new ‘Health Services Building’ to provide larger and improved space for University Health Services. When completed, the new building would replace the McCosh Health Center, which has been the principal site for University Health Services since 1920.
Princeton University Health Services serves students and university employees with outpatient medical care, counseling and psychological services, and health promotion activities. As the University has grown and medical practice has evolved, the McCosh Health Center is no longer appropriate for the diverse support services required by the university community. A new health center is therefore proposed on a 1.6 acre site on the north side of Goheen Walk, just southwest of the existing McCosh Health Center.

Location of the proposed new University Health Services building, from plans submitted to the Princeton Municipal Planning Department.
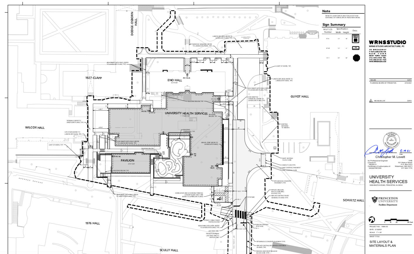
The new health center would be made up of a renovated Eno Hall with a large new addition, as shown in the image at the top of this article. Together, these structures would provide 76,458 sq ft of space, built up to three stories. Construction would require demolition of 1938 Hall, a residential dorm that makes up part of First College (formerly Wilson College), and the Rock Magnetism lab, part of the Earth Sciences Department. The site is deliberately chosen to be highly accessibly on foot, and in a central part of the campus. The main lobby will be accessible from the north, east, and south. Vehicular access, where required, will be via Guyot Lane, connecting to Washington Road. Dedicated ambulance parking will be available at a service entrance at the south-east corner of the building.

Site plan, showing location of the new structure and how it will connect with Eno Hall.
The new addition will be constructed from cross-laminated timber and concrete. The wings of the new building will surround a ‘sunken garden’, which is intended to be “a sensory garden with plants that have characteristic fragrance, textures, and colors through all the seasons”. Additional greenery will be provided in terraces, on planted roofs, and from new trees.

Cross-section of the new building, showing arrangement around sunken garden.
The plan will be considered by the town of Princeton’s Site Plan Review Advisory Board at a meeting on July 14, 2021. The application can be viewed as a PDF file from the town’s Planning Department website at this link. Additional site plans are available in two volumes: <volume 1> <volume 2>.
Pingback: The history of a campus center and the importance of renovations at Princeton - The Daily Princetonian -